CAD Zeichen- und Büroservice
Kerstin Queck
Lorem ipsum dolor sit amet, consectetur adipiscing elit. Ut elit tellus, luctus nec ullamcorper mattis, pulvinar dapibus leo.
ICH BIN IHR PARTNER FÜR TECHNISCHES ZEICHNEN
Mein Unternehmen habe ich 2008 gegründet und seitdem bin ich selbstständig unterwegs.
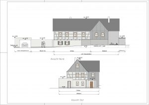
Mit Begeisterung zeichne ich vor allem Eigenheime und andere Hochbauplanung mit CAD Autodesk.
WOLLEN SIE MEHR
EFFIZIENZ IN IHRER BAUPLANUNG?
Durch meine jahrelange Erfahrung unterstütze ich Sie mit meinem Fachwissen bei der Anfertigung Ihrer Baupläne oder Bestandsaufnahmen.
Lassen Sie uns gemeinsam an Ihren Aufträgen arbeiten – flexibel, gewissenhaft und vor allem effizient. Schaffen Sie dadurch sogar mehr Aufträge.
MEINE LEISTUNGEN
Entwurfszeichnungen
Überlegungen mit Architekten, Bauherren, Planer oder Privatpersonen werden angestellt. Ideen und Vorstellungen können so als Entwurf zu Papier gebracht werden.
Bestandszeichnungen
Das Gebäude besteht bereits, allerdings gibt es keine Pläne. Ich fertige Bestandszeichungen an, um die Struktur nachvollziehen und z.B. Berechnungen durchführen zu können.
Ausführungszeichnungen
Bevor der Bau beginnt, werden detailreiche Pläne für die Baufirma benötigt.
AUF EINEN BLICK
Ihre Vorteile
- Sie müssen keinen Arbeitsplatz vorhalten.
Sie zahlen nur die Leistungen, die beauftragt und erbracht wurden.
Sie haben keinen Ausfall durch Krankheit oder Urlaub.
Sie müssen keine Lohnsteuer abführen. Meine Leistungen sind sogar absetzbar.
Ausgaben für Hard- und Software sowie Wartung und Pflege entfallen.
Unterstützung für
- Architekten
Ingenieurbüros
Bauplaner
Baufirmen
private Bauherren

