ZEICHNUNGEN

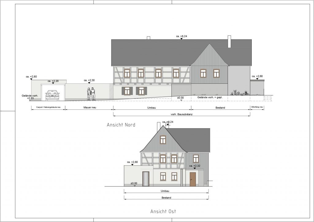
Ansicht (Aufriss)
Auf der Ansicht sieht man die vertikale Organisation des Gebäudes, also die Fassaden – als würde von man vor dem Haus stehen und frontal darauf blicken. Es werden Pläne von allen vier Gebäudeseiten angefertigt. Beim Aufriss von Innenräumen spricht man von einem Schnitt, da hierfür, wie beim Grundriss auch, das Gebäude imaginär zerschnitten wird, um in sein Inneres sehen zu können.
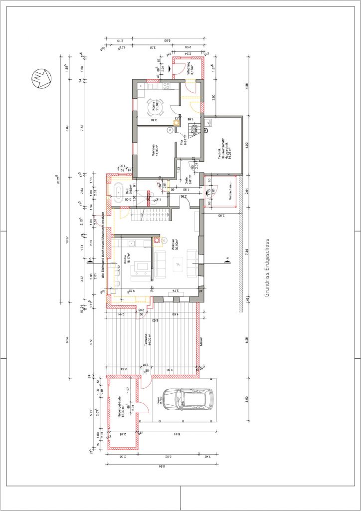
Grundriss
Stellen Sie sich ein Haus als massiven Block vor, den Sie mit einem Messer zerschneiden. Ein Grundriss bildet das Haus ab, indem er eine Projektion der Grundfläche zeigt, wenn man etwa bei einem Drittel der Raumhöhe einen horizontalen Schnitt machen würde – so, als sähen Sie von oben in den Block hinein. Grundrisse werden von jedem Geschoss eines Gebäudes gezeichnet, die Schnittstelle wird durch eine fette Linie markiert. Die Blickrichtung geht immer zur Erde hin, so dass unterhalb des Schnittes liegende Bereiche wie der Fußboden, Treppen, Fenster und Türöffnungen zu sehen sind, darüber liegende dagegen nicht. Grundrisse werden für das Bauamt im Maßstab 1:100, für die Handwerker dann im Maßstab 1:50.
